construire une annexe

Nous commençons à construire une annexe en bois sur les hauteurs de Monaco (le début du chantier est à voir ici . Après quelques surprises initiales (la structure de la dalle béton était vraiment problématique aussi, l’architecte et maitre d’oeuvre a opté pour une reconstruction totale de celle-ci), nous avons réceptionnés le support afin de construire une annexe en bois.

OSSATURE BOIS

Nous avons profité de cette nouvelle dalle pour intégrer les réseaux (électricité, eau et courants faibles) car la dalle étant un radier, nous ne pourrons pas utiliser un vide sanitaire ultérieurement pour alimenter la maison.

Préparation d’un chantier :

Réception du support :

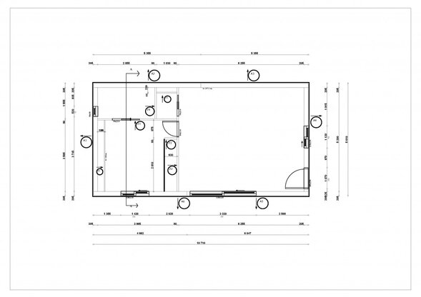
La réception d’une dalle est pour nous le top départ d’une construction en bois.

dalle radier dalle radier dalle radier

Nous vérifions à cette phase :

  • la dimension et la géométrie de la dalle (ici un radier en béton)
  • la planéité de celle-ci
  • la position des réseaux
  • la résistance mécanique de la dalle.

Cette étape c’est faite ici lors d’une réunion de chantier avec les architectes, maçons, électriciens…

La logistique :

Dans tout chantier, la logistique a une importance primordiale. Des accès au chantier va dépendre la taille et le poids des murs, la taille des véhicules de portage, le système de colisage… C’est pour cette raison que nous demandons à voir chaque terrain avant la réalisation d’un devis. En effet, le coût de réalisation d’une maison peut varier considérablement d’un terrain à un autre (sans parler du recours à un héli-portage, solution sue nous étudions pour un projet complexe sur Le Lavandou).

DECHARGEMENT OSSATURE BOIS DECHARGEMENT OSSATURE BOIS

Pour construire cette annexe, nous avons choisi de faire venir l’ensemble des éléments de construction sur un semi-remorque (murs, menuiseries et éléments de finition) pour limiter le “coût carbone” du transport puis de répartir ce chargement en 2 transports moins volumineux.

déchargement ossature bois

En effet, nous sommes contraint de traverser les rues étroites et les virages de Monaco et Cap d’Ail pour atteindre le chantier et construire enfin une annexe.

Nous avons donc regroupé notre semi et un camion-grue plus court sur la même zone de chantier proche du nouveau stade de Nice pour procéder à une opération de transbordement. C’est exactement à cet endroit que nous avions procédé à une opération de colisage similaire avec Eric Cicciari et sa remorque pour atteindre en juillet notre chantier de Nice.

Déchargement :

Une fois l’ensemble des murs et des bois de l’annexe sécurisé sur le camion-grue, nous voici en route pour un périple routier au travers du dédale urbain Monégasque. Un grand Bravo à notre chauffeur Stéphane qui a fait passer le camion par une partie du circuit de F1 de la principauté sans abîmer le mobilier urbain et les voitures de prix !

Nous ne sommes pas passés inaperçu, car il faut bien dire que Monaco est plus habitué aux chantiers tout béton, qu’aux constructions en bois !! Pour être en place près de la villa , nous avions fait des demandes d’utilisation de l’espace public, afin de libérer des places de stationnement et ainsi ne pas entraver la circulation. Un grand merci également  à la Police municipale de Cap d’Ail 06, dont les agents nous ont assistés.

déchargement ossature bois déchargement ossature bois déchargement ossature bois déchargement ossature bois

Une fois le camion en place, La grue est entrée en action pour déposer l’ensemble des bois et colis, 3 mètres plus haut, sur la terrasse de la maison.

Une grosse partie technique est faite, mais le plus dur reste à faire. En effet le chantier est inaccessible pour un moyen de manutention ou de portage. C’est donc à dos d’homme que l’ensemble de la maison va être porté entre la terrasse et la dalle qui nous attend.

déchargement ossature bois déchargement ossature bois déchargement ossature bois déchargement ossature bois

Très vite, nous pourrons débuter et construire une annexe avec vue mer…

Monaco

 

Monaco, 98000, maison en ossature bois et bardage

Notre adresse :
4 avenue Marcel Pagnol, l`Atrium B, 13090, Aix en Provence PACA
 
04.94.723.723. contact@maisonboiscotesud.com

 

 

 

Contactez-nous
close slider
Appelez-nous