Construction de la maison

Nous voici à pied d’œuvre pour débuter la construction de la maison en bois massif, sur Saint-Maximin-la-Sainte-Baume, dans le Var. Les madriers ont été livrés il y a quelques jours sur le chantier. Nous avons attendu pour commencer le montage :

  1. que la dalle en béton soit suffisamment sèche pour fixer les équerres  métalliques qui ancrent et positionnent notre lisse basse (le 1er rang de nos murs en bois)
  2. que la météo soit plus clémente et nous permette un accès plus facile au terrain, et des conditions de travail moins…. humides.

Assemblage du kit bois

La construction d’une maison en bois massif débute par la mise en place de la poutre de sol (elle est dénommée lisse basse et numérotée S1 dans notre société).

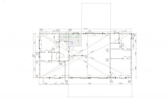
PLAN POUTRE DE SOL

Pose de la lisse de sol

Cette poutre de sol est réalisée avec un madrier en épicéa contre-collé puis protégé. Cette protection est de 2 ordres :

poutre de sol maison bois massif Rougiers poutre de sol maison bois massif Rougiers

  1. la poutre est auto-clavée en classe 4 (protection permanente à l’eau) car peut être au contact d’eaux stagnantes durant tout le chantier et elle sera recouverte de béton (chape de carrelage) lorsque la maison  sera terminée.
  2. la poutre est également protégée par une membrane (Diba) pour la protéger des insectes et des remontées d’eau.

La lisse de sol est tout d’abord positionnée sur la dalle suivant le plan de répartition des pièces de la maison de façon rapide, pour vérifier que l’ensemble est correctement préparé.

Ensuite nous allons procéder à un long travail de calage et de préparation. Durant cette phase, nous devons positionner et fixer l’ensemble des lisses. En effet c’est cette poutre S1 qui va conditionner le reste du montage. Dans une construction en bois massif, il est en effet difficile de corriger un départ mal préparé. Les madriers sont en effet assemblés par un système d’encoches (tenons et mortaises) directement l’un sur l’autre. Aussi, la moindre erreur d’angle ou d’axe sur la poutre de départ va se répercuter jusqu’à la toiture.

Pour éviter cela, les poutres sont calées suivant 3 axes :

poutre de sol

  1. dans un premier temps les poutres sont précisément installées et positionnées sur la dalle, suivant le plan de montage (vérification des côtes et des diagonales). Ce travail est facilité par l’usinage des bois dans lequel ont retrouve les entailles destinées à recevoir les murs perpendiculaires. Lorsque les poutres sont en place, elles sont calées provisoirement.
  2. dans un second temps, nous mettons l’ensemble des poutres à la même hauteur en partant du point le plus haut de la dalle de compression. (en effet une dalle n’est jamais parfaitement plane et nous devons récupérer cet écart.
  3. Enfin nous vérifions les dévers des poutres et rectifions l’ensemble pour avoir une base de pose parfaitement horizontale.

Quand ce travail de réglage est terminé, l’ensemble est définitivement fixé à la dalle, puis les espaces existants entre la dalle et le bas des madriers est comblé avec un mortier incompressible afin de reprendre le poids de la maison de façon homogène.

Elévation des murs

A partir de la poutre de sol, l’élévation des murs est la partie la plus rapide de la construction de la maison en madriers. Chacun de nos murs, préalablement défini en détail sur notre logiciel de dessin, est coupé par une machine à commande numérique.

maison bois massif Rougiers maison bois massif Rougiers

maison bois massif Rougiers maison bois massif Rougiers

Ainsi, les murs nous arrivent sur chantier sous la forme d’un gros paquet cadeau. Dans chaque paquet, se trouve les madriers d’un mur, prêts à être assemblés. Les madriers portent une étiquette d’identification, avec un double numérotage (le numéro du mur sur le plan général de la maison et le son numéro de rang, sa position, dans le mur).

maison bois massif Rougiers maison bois massif Rougiers maison bois massif Rougiers maison bois massif Rougiers maison bois massif Rougiers maison bois massif Rougiers maison bois massif Rougiers maison bois massif Rougiers

Ainsi, après une phase un peu longue de réglage de la première lisse, il est possible le monter le reste des murs en très peu de temps. A St-Maximin, nous mettrons 1 semaine pour réaliser cette tache, avant de participer à la réunion de second œuvre organisée ce vendredi par les maitres d’oeuvres.

Saint Maximin, Rougiers Var 831 70 , maison en bois massif finition enduits et bardage. Architecte K.Musso.

 
Notre adresse en région PACA :
4 avenue Marcel Pagnol, l`Atrium B, 13090, Aix-en-Provence
 
04.94.723.723. contact@maisonboiscotesud.com

 

 

 

 

 

 

 

 

 

 

 

 

 

 

 

 

 

 

 

 

 

 

 

 

 

 

 

 

 

 

 

 

 

 

 

 

 

 

 

 

 

 

 

 

 

 

 

 

 

 

 

 

 

 

 

 

 

 

 

 

 

 

 

 

 

 

 

 

 

 

 

 

 

 

 

 

 

 

Contactez-nous
close slider
Appelez-nous